Notícias

Obra da nova sede da ADB Sindical no Clube das Nações está em andamento

Obra da nova sede da ADB Sindical no Clube das Nações está em andamento

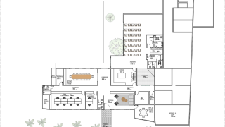
As obras de reforma da futura sede da ADB Sindical, localizada no Clube das Nações, já estão em execução e prometem transformar o espaço em um ambiente moderno, funcional e preparado para atender às necessidades crescentes da nossa categoria.

O prédio, que anteriormente estava desativado, passa agora por uma ampla revitalização estrutural, contemplando melhorias nas áreas administrativas, espaços de atendimento, salas de reuniões, ambientes de convivência, áreas externas e acessibilidade. A proposta é garantir mais conforto, eficiência e qualidade nos serviços oferecidos aos filiados e filiadas, fortalecendo ainda mais o papel da entidade na defesa de direitos e no acolhimento aos servidores.

Transparência e acompanhamento das obras

Com o objetivo de manter a base informada e próxima de cada etapa dessa transformação, a ADB Sindical irá divulgar vídeos e atualizações no instagram @adbsindical mostrando o progresso da reforma e destacando os avanços da construção.

Além disso, em respeito ao compromisso com a transparência, os documentos referentes aos orçamentos e projetos da obra podem ser consultados aqui.

ADB NEWSLETTER

Inscreva-se e acompanhe as novidades e notícias da Associação e do Sindicato

SEDE:

Esplanada dos Ministérios, Bl. H, Anexo I, Sala 335 A, CEP: 70.170-900 | Brasília|DF

FONE:

(61) 2030.6950 | 99409.5764

ENCARREGADAS DE DADOS ADB: Jacqueline Cruz | Danielle Sabiá

Alto Contraste